內容摘要:恒光電器,照亮您的生活,專業LED照明,22年專注照明行業-從科研,開發,設計,到精選優質材料制造,再到生產重量的嚴格控制,保證到用戶手中是優質精選產品-為您提供最安全、穩定的照明解決方案-室內照明燈光設計,照明轉換工程,節能環保工程提供解決照明燈光設計方案
60平方米住宅燈光照明設計要求
- 用戶名:易風
- 發布時間:2013-06-03 11:04
- 點擊:64 次
- 裝修用途:家居裝修
燈光照明設計要求:
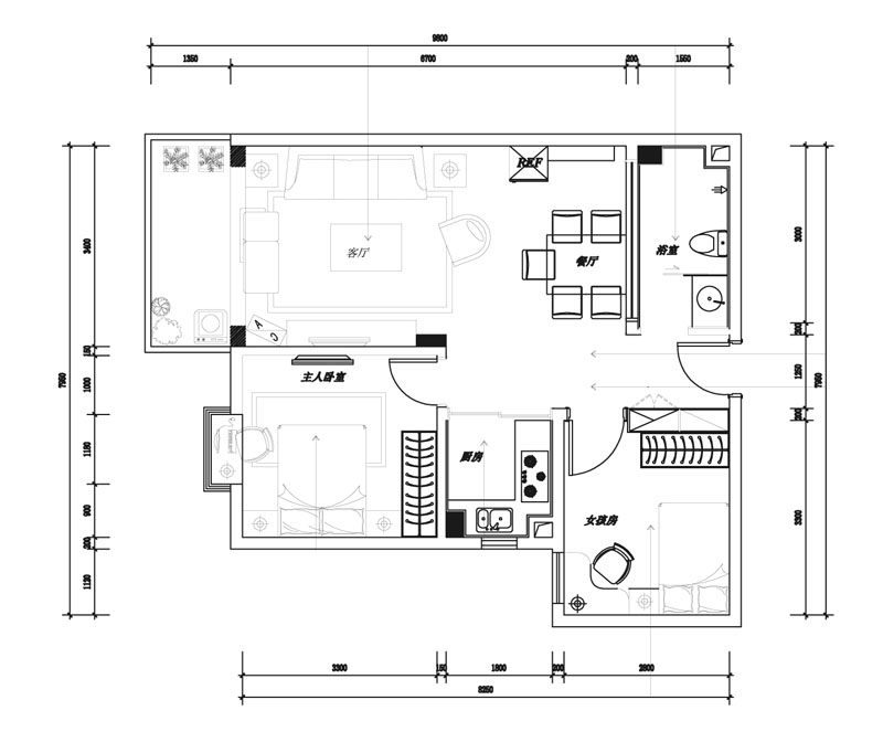
60平方米,一個主人房、一個是我小女兒的房、有大廳、飯廳、廚房標準的小戶型商品樓,今年準備裝修,請朋友幫我設計了一下房子布局圖。我的裝修風格比較簡單,舒服就好。
60平方米住宅燈光照明設計方案
- 用戶名:恒光設計師
- 裝修用途:家居裝修
燈光照明設計說明:
1、入室走道,做三個長方型的天花池造型,池四周用T5-LED燈管做暗槽。 2、飯廳做一個方型的天花池,池四周用T5-LED燈管做暗槽,中間裝LED蠟燭球泡做的吊燈。 3、大廳做一個L型的暗槽,槽里面用T5-LED燈管打暗光,中間裝LED蠟燭球泡做的水晶吊燈。電視柜上配四個LED小射燈,看電視時可打開。 4、主人房和小孩房放一盞LED家裝吸頂燈。 5、廚房、衛生間正中各裝LED吸頂廚衛燈。









































































