200平方米住宅燈光照明設計解決方案
- 用戶名:Mchaelleo
- 發布時間:2013-08-26 15:23
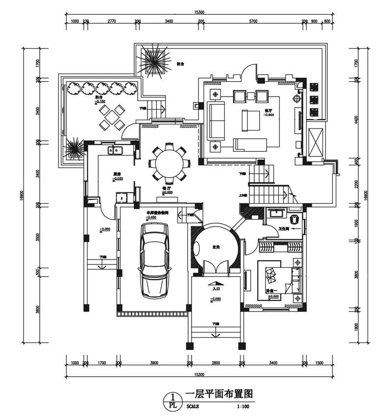
設計需求圖紙
設計需求說明獨戶的住宅,200平方米的建筑面積,有大廳、飯廳、廚房和一個客房,歐式裝修時尚風格。墻身貼墻紙,歐式家具,要配合黃光襯托。細節圖請看我拍的照片。 |
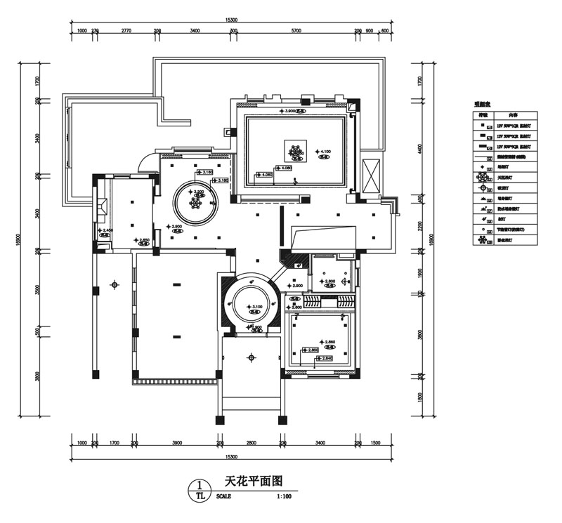
燈光照明設計方案回復回復時間:2013-09-13 09:33燈光照明設計布局圖
燈光照明設計方案說明1、入室門廳做一個圓型的天花池,池的四周用T5-LED燈管做暗槽,天花池外裝四個天花燈射燈。 2、走道裝LED筒燈做照明裝飾。 3、飯廳做一個圓型的天花池,池四周用T5-LED燈管做暗槽,中間裝LED蠟燭球泡做的吊燈,池外四周裝LED筒燈做照明裝飾。 4、大廳做一個方型的天花池,池四周用T5-LED燈管做暗槽,中間裝LED蠟燭球泡做的大型水晶吊燈,池外四周裝LED筒燈做照明裝飾。 5、飯廳做一個大的圓型天花池,池四周用T5-LED燈管做暗槽,中間裝LED蠟燭球泡做的水晶吊燈。 6、廚房、衛生間各裝LED吸頂廚衛燈。 7、客房做一個造型的假天花,四周配LED筒燈為主照明。 8、具體的布局請看設計圖。 |
燈光照明設計方案相關產品推薦 |









































































